Semi-Custom
The right house for you
Flexibility Made Easy
Personalize With Ease
By next season, your new home can be ready for move-in. Take advantage of an array of lots and floor plans, and modify them to your unique needs and specifications. The custom-built home of your dreams is at your fingertips.
Choose a Base Floor Plan
Start by choosing the base floor plan that fits your lifestyle.
Customize Your Plan
Make your house feel like home by customizing your plan to make it work best for you.
Enjoy A Faster Build
Semi-custom builds are move-in ready in just 5-6 months!
Floor Plan Library
Options To Fit You
Choose the floor plan that suits your lifestyle. Check out our library of available floor plans!
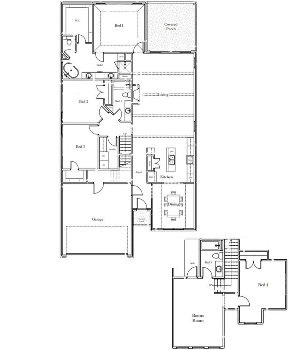
Ozark
- One Story
- 4 Bedrooms
- 2.5 Baths
The Ozark is designed for easy everyday living, with a spacious kitchen, dining, and living area that naturally brings everyone together. The primary suite sits quietly at the back of the home and includes a generous bath and walk-in closet. Three additional bedrooms are grouped near a shared full bath, making them great for family, guests, or flexible uses like a hobby room or home office. A covered porch adds outdoor living space, and the layout includes convenient storage and a well-placed laundry room. You can personalize the Ozark with alternate kitchen layouts, expanded living areas, or custom finishes to match your style.
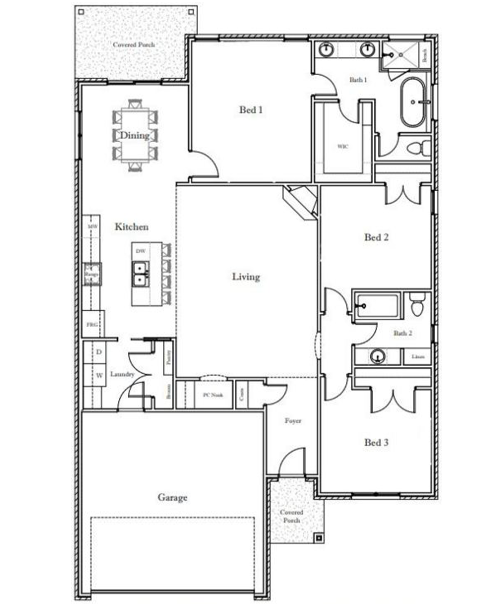
Aspen
- One Story
- 3 Bedrooms
- 2.5 Baths
The Aspen offers a comfortable, open layout centered around a bright kitchen and living area—ideal for cooking, gathering, or just relaxing at home. The primary suite has its own private bath and walk-in closet, while two additional bedrooms share a full bath down the hall. A half bath near the main living area is great for guests, and the covered porch adds a welcoming outdoor option. Customization is available, including layout adjustments, extra storage options, and design upgrades.
Fernwood
- One Story
- 3 Bedrooms
- 2 Baths
The Fernwood keeps everything you need on one level with a simple, flowing layout. The kitchen opens to the dining and living areas, making the main space feel warm and connected. The primary suite offers a private retreat with a walk-in closet and full bath, while two secondary bedrooms sit on the opposite side of the home for added privacy. A covered porch and an easy garage-to-kitchen entry make daily routines smoother. Customize the layout and finishes to create a Fernwood that reflects your vision.
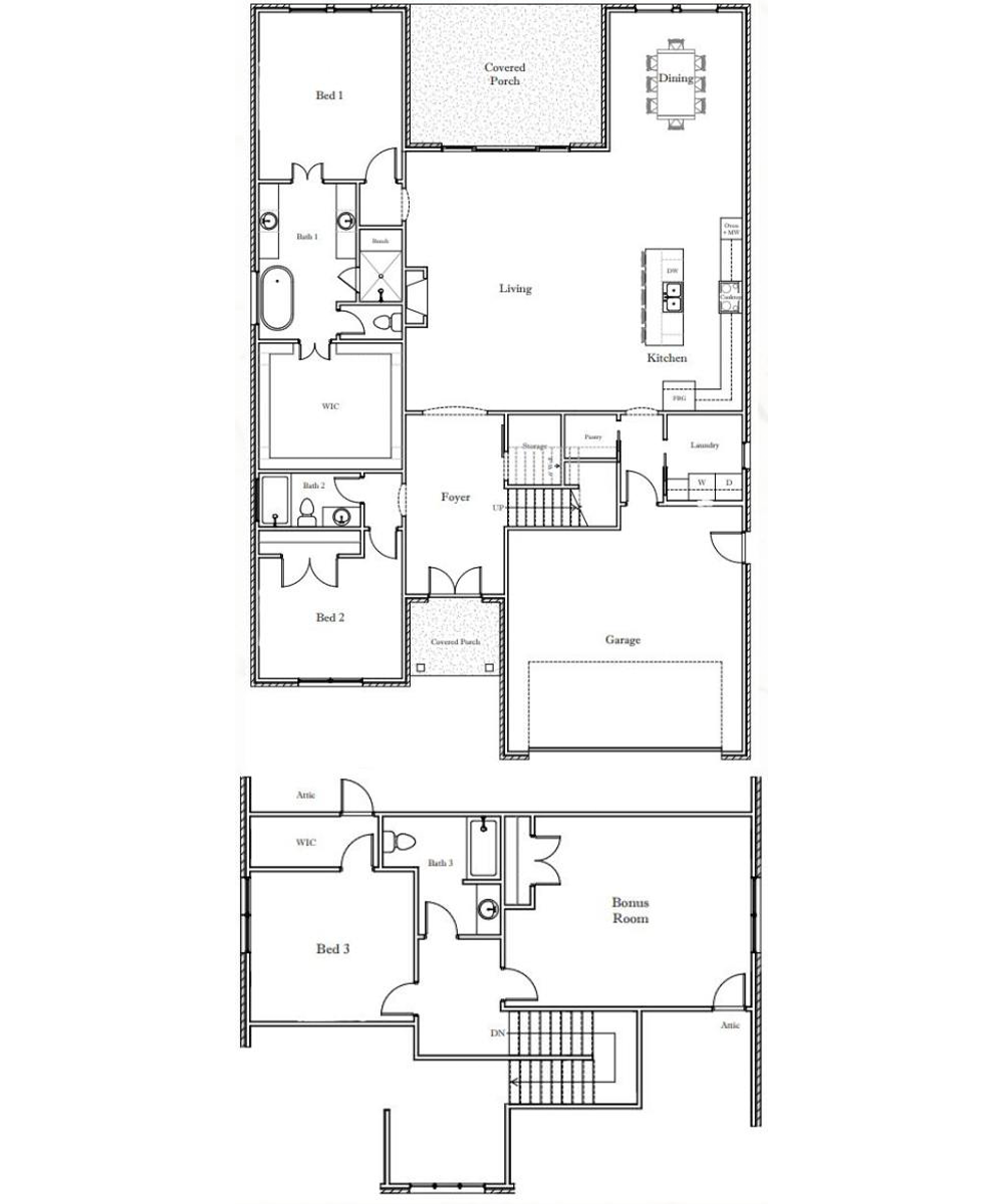
Fernwood 2 Story
- Two Story
- 4 Bedrooms
- 3 Baths
The Fernwood 2 Story expands on the original plan with more space and separation. The main level includes an open living, dining, and kitchen area, plus a bedroom that can double as a guest room or home office. Upstairs, the primary suite is joined by two additional bedrooms, giving everyone room to spread out. The layout balances shared spaces with private ones, and the covered porch adds a relaxed outdoor spot. This plan is fully customizable, giving you the freedom to shape each space to your needs.
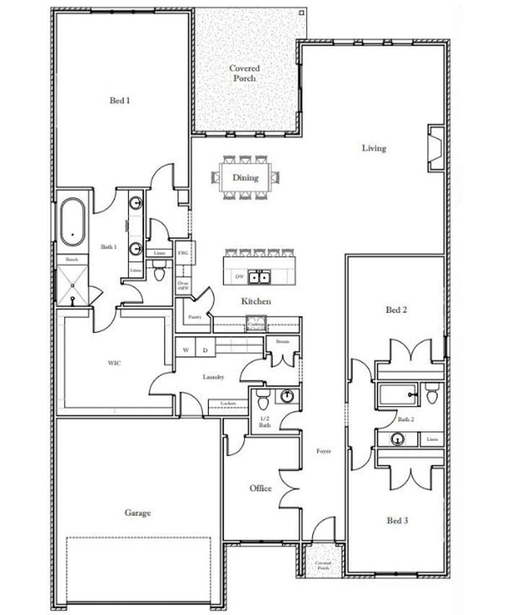
Magnolia
- Two Story
- 3 Bedrooms
- 3 Baths
The Magnolia offers a comfortable two-story layout designed to give each part of the home its own sense of space. The main level features an open living and dining area connected to a well-sized kitchen, creating an easy flow for everyday routines. Two bedrooms sit on this floor—one near the front of the home and the other tucked toward the back for added privacy—each close to a full bath. Upstairs, a third bedroom pairs with a spacious bonus room, perfect for a second living area, game room, or home office. A covered porch and a direct entry from the garage add convenience to daily living. From finishes to floor-plan adjustments, the Magnolia can be customized to fit how you live.
Jasper
- One Story
- 3 Bedrooms
- 2 Baths
The Jasper brings everything onto one level with a layout that feels open and welcoming. The kitchen sits at the center of the home and connects directly to the dining and living areas, making the space ideal for gathering or unwinding. The primary suite features a large walk-in closet and easy access to the laundry area. Two additional bedrooms are grouped near a shared bath, offering comfortable accommodations for family or guests. A covered porch and a generously sized garage add to the home’s convenience. Make it your own with customizable features and layout options designed around your lifestyle.
McKinley
- One Story
- 3 Bedrooms
- 2 Baths
The McKinley has a warm, open layout centered around a spacious living area with direct access to the kitchen and dining space. The primary bedroom sits in its own corner of the home and includes a full bath and walk-in closet. Two secondary bedrooms share a hall bath and are positioned away from the main living area for privacy. A covered porch, dedicated laundry room, and easy garage entry make the home practical for everyday living. Customize finishes, fixtures, and layout choices to create a McKinley that feels uniquely yours.
Pinnacle
- One Story
- 3 Bedrooms
- 2 Baths
The Pinnacle blends simplicity and comfort with an open-concept kitchen, dining, and living area that feels bright and connected. The primary suite includes a spacious bath and walk-in closet, while two additional bedrooms share a full bath on the opposite side of the home. A front office or flex room near the entry adds versatility for work, hobbies, or extra storage. With a covered porch and convenient laundry and garage access, the layout supports an easy, everyday lifestyle. Personalize the Pinnacle with custom features and thoughtful options that match your needs.
Timeline & Pricing
Clear And Predictable
New construction doesn’t have to be a stressful process, which is why HD Homes is streamlining it. Your dream home can be yours in just half a year. Semi-custom HD Homes are typically built within a 6 month timeline, with transparent pricing and a guaranteed cost once your customizations are finalized. Once your timeline and pricing are locked in, just leave the rest to us.
Typical 5–6 month build schedule
Our streamlined process allows most homes to be completed within a typical 5-6 month timeframe, offering a predictable timeline and a smoother path from start to finish.
Transparent Pricing
Our pricing is straightforward and clearly outlined from the start, so you can understand costs, options, and expectations at every stage of the building process.
Guaranteed Cost Once Selections are Finalized
After your selections are finalized, pricing is locked in. This commitment helps eliminate surprises and provides assurance as your home moves through the construction phase.
Have Questions About Semi-Custom?
The perfect blend of structure and choice
Curious how the semi-custom process works? Find answers about design options, timelines, and what makes this approach flexible and straightforward.
Start Your Semi-Custom Build
Choose Your Plan
Ready to start customizing your dream home? Reserve a lot, select your floorplan, and modify according to your unique needs and specifications.

